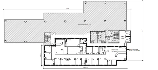
This third-floor opportunity offers approximately 6,819 square feet of remaining space along the north side of the building (as outlined on the floor plan), ideal for office, medical, or professional uses.
The premises feature a bright, open-concept layout with a full ceiling, two complete sets of washrooms, and air conditioning throughout, providing a functional and comfortable workspace for a variety of tenants. The unit is conveniently serviced by two elevators in the West Tower, ensuring easy access for staff and visitors alike.
Centrally located with strong transit connectivity and proximity to key Vancouver corridors, City Square offers a professional environment within a vibrant commercial setting.
Note: Area includes a 10.8% gross-up from 6,819 sq. ft. net usable area. All information subject to change without notice.





